Nieuw in verkoop
Beschrijving
Ruime twee-onder-een-kapwoning met verrassend veel leefruimte en grote bergingWelkom bij de Gezetstraat 12 in Andel, een royale 2-onder-1-kapwoning met een woonoppervlak van circa 142 m², een inhoud van 500 m³ en gelegen op een perceel van 304 m². Deze traditioneel gebouwde woning uit 1955 ligt op een centrale locatie in het gemoedelijke dorp Andel, onderdeel van de gemeente Altena. Supermarkt en basisschool bevinden zich op loopafstand: ideaal voor het dagelijkse gemak.
Wonen in het hart van Andel
Andel is bekend om de 14e eeuwse Romboutstoren gelegen in het midden van het dorp. Wekelijks is hier een markt op vrijdagmorgen op het plein en ligt er voor de toren een jeu de boules baan. Verder is het prachtig gelegen aan de Afgedamde Maas en nabij de Wilhelminasluis. Het is mooi fietsen over de dijk naar de op korte afstand gelegen vestingstadjes Woudrichem en Heusden. Maar in Andel zelf valt ook van alles te beleven. Zo zijn er diverse sportverenigingen waaronder een voetbal- en tennisvereniging waar ook al padel gespeeld kan worden. Er is zelfs een zwembad en schietvereniging, maar ook een muziekvereniging, voor ieder wat wils. Jaarlijks zijn er diverse activiteiten zoals de jaarmarkt met Pinsteren en rond Koningsdag organiseert Oranjevereniging Juliana diverse activiteiten voor jong en oud.
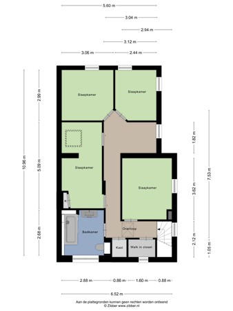
Indeling
Begane grond:
Je komt binnen in de hal met trapopgang naar de eerste verdieping en een praktische trapkast voor extra bergruimte. Vanuit de hal bereik je de centraal gelegen keuken, die toegang biedt tot zowel de woonkamer als de bijkeuken.
De woonkamer is strak en functioneel ingedeeld, met grote raampartijen aan zowel de voor- als achterzijde die voor veel licht zorgen, de houtkachel zorg voor extra warmte en gezelligheid. De ruimte biedt volop mogelijkheden om het helemaal naar eigen smaak in te richten.
Aan de achterzijde bevindt zich de ruime bijkeuken, een bijzonder functionele ruimte met twee vaste kasten, de witgoedaansluitingen en een toilet. Vanuit de bijkeuken heb je direct toegang tot de achtertuin.
Eerste verdieping:
De eerste verdieping beschikt over vier goed bemeten slaapkamers en een handige walk-in closet. Op de overloop bevindt zich een extra inbouwkast voor bergruimte. De badkamer is uitgerust met een wastafel, ligbad en toilet.
Tweede verdieping:
Via een losse kniktrap is de bergzolder bereikbaar, ideaal voor extra opslag.
Buiten:
De woning beschikt over een nette voortuin en een eigen oprit met ruimte voor twee auto’s. De diepe achtertuin is gelegen op het westen en hier bevindt zich een ruime praktische schuur met overkapping die momenteel is ingericht als volwaardig kantoor. Dankzij een rechtstreeks aangelegde internetkabel vanuit de woning beschikt deze ruimte over een stabiele en snelle verbinding, ideaal voor wie thuis wil werken. De schuur biedt bovendien talloze gebruiksmogelijkheden: van werkplek of hobbyruimte, tot atelier, opslag of speelruimte. Een multifunctionele toevoeging die het wooncomfort van de woning vergroot.
Kenmerken:
Bouwjaar: 1955
Inhoud: 500 m³
Perceeloppervlakte: 304 m²
Woonoppervlakte: 142 m²
Kozijnen: kunststof
Voorzieningen: aardgas, waterleiding, telefoon, elektriciteit, riolering.
Verwarming: centrale verwarming C.V. ketel merk Nefit, bouwjaar 2000
Isolatie: HR++ glas
Energielabel: E (Na opmaken van het energielabel d.d. 08-04-2019 zijn er nog energiezuinige verbeteringen aangebracht, zoals o.a. zonnepanelen, HR++ glas)
Groepenkast: 10 groepen 16A, 2 aardlekschakelaars
Zonnepanelen: 10, 435 Wp/stuk
Aanvaarding en oplevering in overleg.
Volgens het vigerende bestemmingsplan heeft het object een woonbestemming.
In de koopovereenkomst zal een ouderdomsclausule worden opgenomen.
Van de koper wordt een waarborgsom of bankgarantie gevraagd van 10% van de koopsom, binnen 6 weken na het ondertekenen van de koopovereenkomst.
De door Pullen Makelaardij o.g. verstrekte informatie dient uitsluitend te worden gezien als een uitnodiging tot nadere informatie, bezichtiging of het uitbrengen van een bod. Wijzigingen in uitvoering voorbehouden. Aan onvolkomenheden in de vermelde gegevens en schaal kunnen geen rechten worden ontleend.
Kenmerken
| Overdracht | |
|---|---|
| Referentienummer | VGP3000482 |
| Vraagprijs | € 400.000,- k.k. |
| Inrichting | Niet gestoffeerd |
| Inrichting | Niet gemeubileerd |
| Status | Nieuw in verkoop |
| Aanvaarding | In overleg |
| Aangeboden sinds | Vrijdag 21 november 2025 |
| Bouw | |
|---|---|
| Type object | Woonhuis, eengezinswoning, twee onder een kap woning |
| Soort bouw | Bestaande bouw |
| Bouwperiode | 1955 |
| Dakbedekking | Bitumen Dakpannen |
| Type dak | Zadeldak |
| Isolatievormen | HR-glas Spouwmuren |
| Oppervlaktes en inhoud | |
|---|---|
| Perceeloppervlakte | 304 m² |
| Woonoppervlakte | 142 m² |
| Inhoud | 503 m³ |
| Oppervlakte externe bergruimte | 20,2 m² |
| Indeling | |
|---|---|
| Aantal bouwlagen | 3 |
| Aantal kamers | 5 (waarvan 4 slaapkamers) |
| Aantal badkamers | 1 (en 1 apart toilet) |
| Locatie | |
|---|---|
| Ligging | In woonwijk Nabij school |
| Tuin | |
|---|---|
| Type | Achtertuin |
| Oriëntering | West |
| Heeft een achterom | Ja |
| Staat | Normaal |
| Energieverbruik | |
|---|---|
| Energielabel | E |
| CV ketel | |
|---|---|
| CV ketel | Nefit |
| Warmtebron | Gas |
| Bouwjaar | 2000 |
| Combiketel | Ja |
| Eigendom | Eigendom |
| Uitrusting | |
|---|---|
| Aantal parkeerplaatsen | 2 |
| Warm water | CV-ketel |
| Verwarmingssysteem | Centrale verwarming Houtkachel |
| Badkamervoorzieningen | Ligbad Toilet Wastafelmeubel |
| Tuin aanwezig | Ja |
| Beschikt over een internetverbinding | Ja |
| Heeft schuur/berging | Ja |
| Heeft een dakraam | Ja |
| Heeft een schuifpui | Ja |
| Heeft zonwering | Ja |
| Heeft zonnepanelen | Ja |
| Kadastrale gegevens | |
|---|---|
| Kadastrale aanduiding | Woudrichem I 735 |
| Perceeloppervlakte | 304 m² |
| Omvang | Geheel perceel |
| Eigendomsituatie | Eigen grond |